UFFICI E LABORATORI

VIA OSLAVIA, MILANO - LAMBRATE

SPAZIO N. 12/A

Locale di circa 230 mq al primo piano, ideale come laboratorio, magazzino o spazio produttivo.

L’ambiente, con altezza interna di 2.70 m, è dotato di servizi igienici e accesso da scala interna.

Canone annuo richiesto: € 41.120,00 + IVA

Spese accessorie: circa â‚¬ 7,00/ mq annui ( 256,60 mq commerciali)

VIA OSLAVIA, MILANO - LAMBRATE

SPAZIO N. 18

Ampio locale versatile di 215 mq commerciali al primo piano, ideale per uffici, laboratori o attività artigianali.

L’ambiente, con un altezza interna di 3.10 m è dotato di doppi servizi,

offre ampi spazi luminosi e facilmente personalizzabili.

Canone annuo richiesto: € 34.400 + IVA

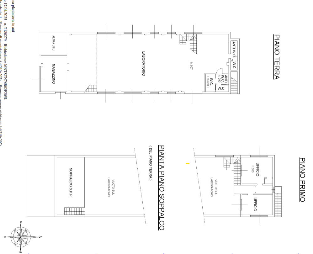
VIA OSLAVIA, MILANO - LAMBRATE

SPAZIO N. 11

Open space di 309 mq commerciali con altezza interna di 6,07 m, ideale per attività logistiche o artigianali.

Ambiente luminoso e versatile con due soppalchi: uno ad uso ufficio (con scala) e uno a magazzino.

Presenti 3 servizi igienici, di cui uno accessibile a persone con disabilità.

Due accessi carrabili con portoni per carico/scarico e transito furgoni.

Completa la proprietà un ulteriore magazzino sul retro con ingresso indipendente.

Canone annuo: € 52.500 + IVA
Spese accessorie: circa € 7,00/mq annui

VIA OSLAVIA, MILANO - LAMBRATE

CAPANNONE 8

All’interno di uno stabile a destinazione mista, proponiamo spazi in locazione ideali per uffici, attività operative e logistiche, disponibili sia in blocco sia frazionati, in base alle esigenze del conduttore.

L’immobile si sviluppa su due livelli e offre diverse soluzioni indipendenti.

È possibile locare l’intero complesso di 1.421 mq a € 277.640/anno (€ 195/mq), comprensivo di primo piano con open space, magazzino e mensa, oltre al secondo piano destinato a uffici con terrazzi.

In alternativa, sono disponibili unità separate:

Secondo piano uffici (758 mq) con 69 mq di terrazzi a € 151.670/anno (€ 200/mq)

Primo piano open space (397 mq) a € 75.430/anno (€ 190/mq)

Primo piano magazzino + mensa (266 mq) a € 50.540/anno (€ 190/mq)

Intero primo piano (663 mq) a € 125.970/anno (€ 190/mq)

Soluzione versatile, adatta a realtà aziendali, studi professionali o attività che necessitano di spazi flessibili e modulabili.

VIA INVERIGO 5, MILANO - GALLARATESE

In Via Inverigo, Milano, proponiamo uffici di nuova realizzazione, recentemente ristrutturati, pensati per aziende che ricercano funzionalità, rappresentatività e comfort.

Le soluzioni disponibili, con superfici da 135 a 650 mq, offrono ambienti luminosi e versatili, configurabili come open space, uffici direzionali o sale riunioni.

Gli spazi sono dotati di pavimenti tecnici, impianti elettrici e climatizzazione di ultima generazione, garantendo elevati standard di efficienza e comfort. Presenti bagni ristrutturati e accesso per persone con disabilità.

L’immobile, ad uso esclusivo uffici, offre un contesto professionale con portineria diurna e doppio ascensore. Possibilità di personalizzazione degli ambienti.

Completano la proprietà fino a 10 posti auto interni.

VIA DEI CIGNOLI 4 MILANO – GALLARATESE

Proponiamo in locazione, senza spese di intermediazione, ufficio di 86 mq situato al primo piano di edificio servito da ascensore, ideale per professionisti e aziende.

L’immobile è composto da tre locali ufficio, toilette con doccia e spazi accessori. Presenti due armadiature e armadio rack, utili per archiviazione e gestione delle infrastrutture tecnologiche.

Dotato di climatizzazione Inverter e riscaldamento centralizzato con termovalvole e ripartitori di calore, garantisce comfort ed efficienza. Completa la proprietà una cantina.

Canone mensile: € 1.150
Spese condominiali: € 280/mese
Deposito cauzionale: 3 mensilità
Nessuna spesa di agenzia